Digilent USB-2627 Evaluation Board
Digilent USB-2627 Evaluation Board is a high-speed, high-channel USB data acquisition (DAQ) device designed for demanding measurement and control applications. Part of the MCC USB-2600 series, the board features 64 single-ended analog input channels with 16-bit resolution and a sampling rate of up to 1MS/s. The board also includes four analog outputs, 24 digital I/O lines, and four 32-bit counter inputs, making it a versatile solution for complex data acquisition tasks. With USB connectivity, the USB-2627 board offers plug-and-play functionality and is powered directly from the host PC, eliminating the need for external power supplies. This board supports a wide range of software environments, including DAQami, TracerDAQ, and programming support for LabVIEW®, MATLAB®, and Python®. This versatility makes the board ideal for applications such as industrial automation, sensor monitoring, embedded system prototyping, and laboratory testing, where high-speed, multi-channel data collection is essential.Features
- 16-bit resolution
- 1MS/s sample rate
- Up to 64x single-ended analog inputs
- Up to 4x 16-bit, 1MS/s analog outputs
- 24x digital I/O lines
- 4x 32-bit event counters
- 4x timer outputs
- Clock input
- External AI scan
- External AO scan
- Digital trigger input
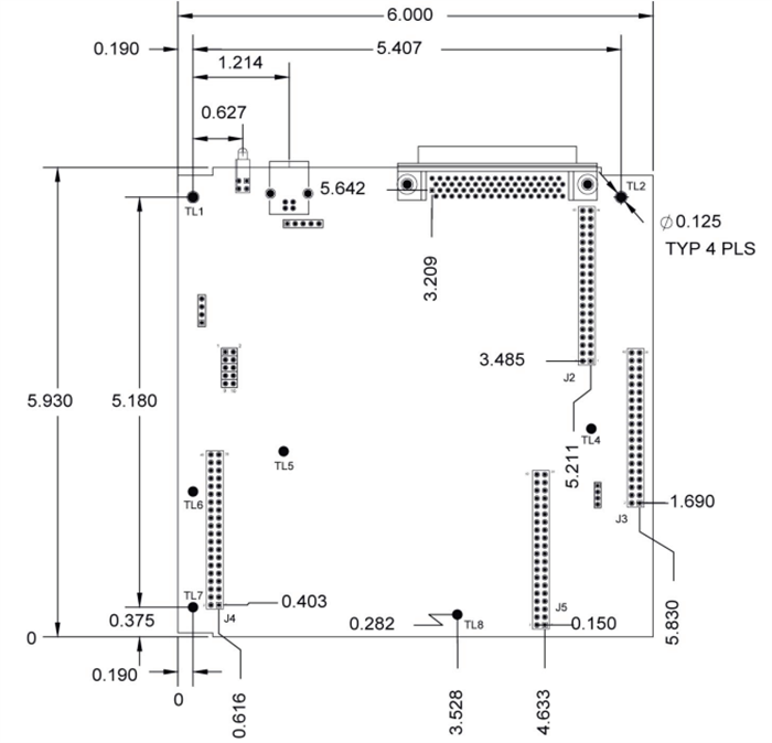
- 1x 68-pin SCSI connector and 3x 40-pin header connectors for field wiring connections
- USB powered (no external power required)
- Includes USB cable and standoffs
- Small footprint for OEM and embedded applications
- Supported operating systems
- Windows® 11/10/8/7/Vista® XP, 32/64-bit
- Linux®
- Android™
Applications
- Industrial automation
- Laboratory data acquisition
- Embedded system prototyping
- Sensor monitoring and logging
- Test and measurement systems
- PC-based instrumentation
- Control system development
Kit Contents
- USB-2627 board
- USB cable
- Accessory kit including standoffs and nuts
- DAQami Quick Start printed insert
- MCC packaging assembly/foam, etc.
Resources
Component Overview
Block Diagram
Dimensions
发布日期: 2025-07-22
| 更新日期: 2025-08-01
